Fachbereich 66 – Grün- und Verkehrsflächen
Archiv
Fachbereich 61 – Stadtentwicklung
Online-Formulare & Anträge
für öffentliche Verkehrsflächen in der Straßenbaulast der Stadt Cottbus
öffentlicher Straßen zum Zwecke der öffentlichen Versorgung oder Entsorgung und der Telekommunikation
von öffentlichen Straßen zum Zwecke der Herstellung und des Umbaus von Grundstückszufahrten und -zugängen
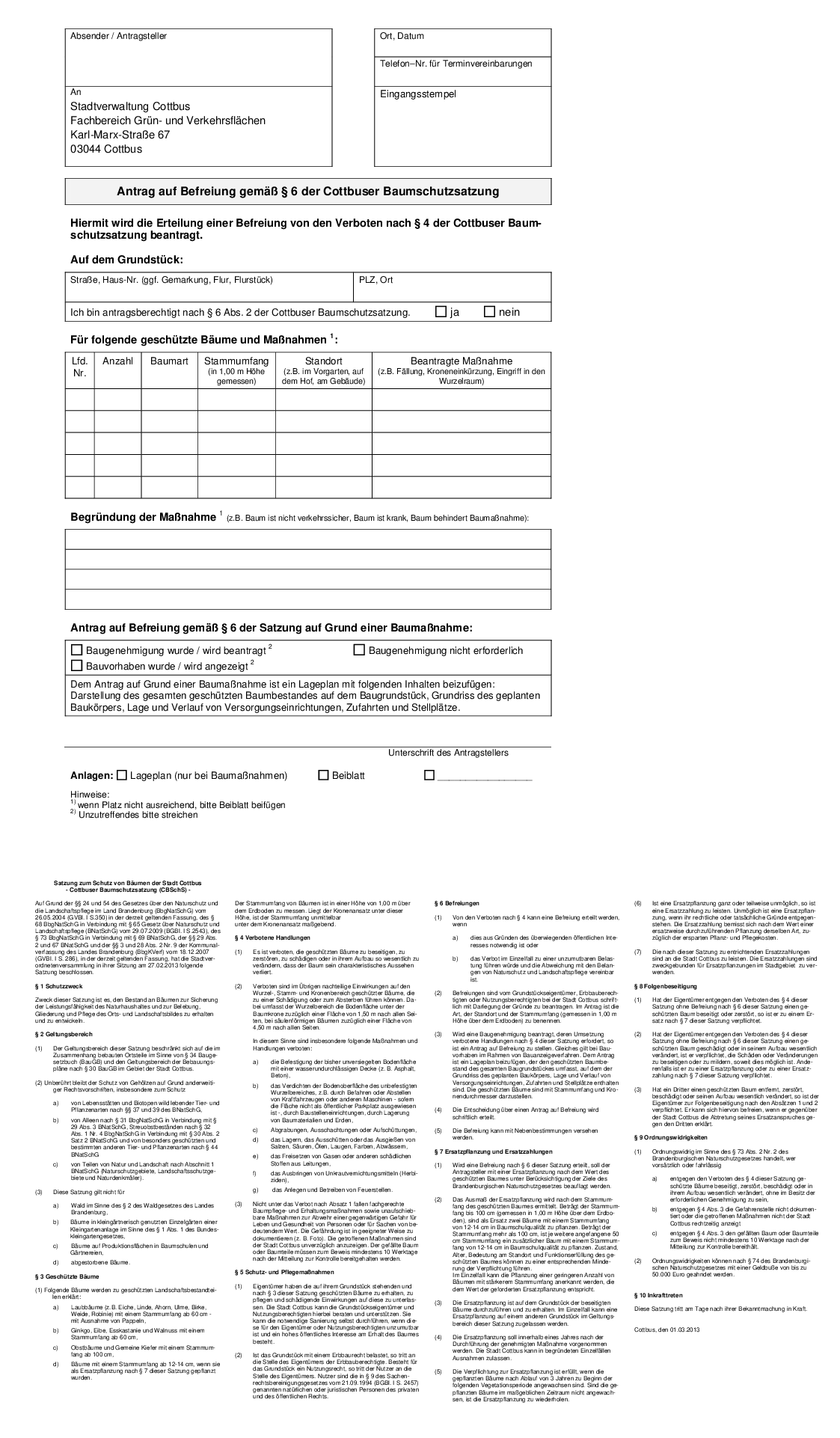
Antrag auf Befreiung gemäß § 6 der Cottbuser Baumschutzsatzung
Achtung: Wir bitten um Verständnis, dass es aufgrund eines hohen Antragsaufkommen zu Verzögerungen in der Bearbeitungszeit von Anträgen auf Befreiung gemäß § 6 der Cottbuser Baumschutzsatzung kommt.
Die Bearbeitungszeit beträgt, unter der Voraussetzung, dass die Antragsunterlagen korrekt und vollständig sind, mindestens 4-6 Wochen, so dass Anträge vor Ablauf des Fällzeitraumes 2025/2026 ab 01.03.2026 spätestens zum 16.01.2026 vollständig einzureichen sind.
Wir bitten von zwischenzeitlichen Rückfragen zum Bearbeitungsstand abzusehen, da diese zu weiteren Verzögerungen führen.
Vielen Dank für Ihr Verständnis!
Aufgaben des Fachbereiches
- Planung, Bau, Unterhaltung sowie Verwaltung
- öffentlicher Straßen, Wege, Plätze,
- von Brücken und konstruktiven Ingenieurbauten,
- von Lichtsignalanlagen und Verkehrsleiteinrichtungen,
- von öffentlichen Grün- und Parkanlagen,
- von Spiel- und Bolzplätzen,
- von Brunnen,
- des Stadtmobiliars sowie
- von sonstigen Verkehrsflächen (Parkplätze) und Straßenzubehör (z.B. Verkehrszeichen, Fahrradständer)
- Ermittlung und Erhebung von Erschließungsbeiträgen
- Erarbeitung des Landschaftsplanes
- Verwaltung der Friedhöfe, Kriegsgräberfürsorge
Allgemeine Informationen
Fachbereichsleiterin Grün- und Verkehrsflächen
Kathrin
Hauzenberger
Fachbereich 66 - Grün- & Verkehrsflächen
Stadtverwaltung Cottbus Technisches Rathaus Fachbereich Grün- und Verkehrsflächen
Karl-Marx-Str. 67
03044
Cottbus
Tel: Sekretariat
Tiefbau
0355 612-4615
Satzungen
- Informationspflichten des Fachbereichs Ordnung und Sicherheit gemäß der Europäischen Datenschutzgrundverordnung (DSGVO)
Die vorliegenden Informationen zur Verarbeitung personenbezogener Daten geben Auskunft über die Pflichtangaben zu den Verarbeitungstätigkeiten der Verantwortlichen.
Sondernutzungssatzung
Information zur Verarbeitung personenbezogener Daten durch die Stadt Cottbus/Chóśebuz im
Öffentlichkeitsbeteiligung im Rahmen der Aufstellung von Satzungen
Information zur Verarbeitung personenbezogener Daten durch die Stadt Cottbus/Chóśebuz für
Baumschutzsatzung
Information zur Verarbeitung personenbezogener Daten durch die Stadt Cottbus/Chóśebuz im
Fortschreibung des Landschaftsplanes
Information zur Verarbeitung personenbezogener Daten durch die Stadt Cottbus/Chóśebuz für
